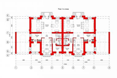
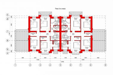
Полли (205м2)

Информация

Проект «Полли» - это удобный, большой по размеру сблокированный дом (дуплекс). Общая площадь дома - 205 м2.  Площадь земельных участков варьируется от 4 до 6 соток.

Проект «Полли» имеет тщательно продуманную планировку, которая обеспечивает комфортное проживание семьи из 4-12 человек.  Всего в доме может быть от пяти до семь спален.