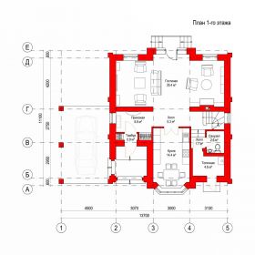
Линда (205м2)

Информация

Проект «Линда» - это отдельно стоящий дом площадью 205 м2. Дома "Линда" распологаются на земельных участка площадью от 4 до 8 соток.

Проект «Грейс» имеет удобную планировку, которая обеспечивает комфортное проживание семьи из 4-9 человек.  Всего в доме может быть от 5 до 7 спален.